Flat for rent - Zaventem
New Appartement - Sterrebeek Golf (The National)
--------- Sterrebeek Golf (The National) ----------Ideally located in a new complex built on the former Sterrebeek racetrack, this development includes a golf course, a David Lloyd fitness center, and several shops.
It enjoys an immediate proximity to various amenities such as public transport (tram 39 Montgomery) and renowned international schools (American, German, BSB).
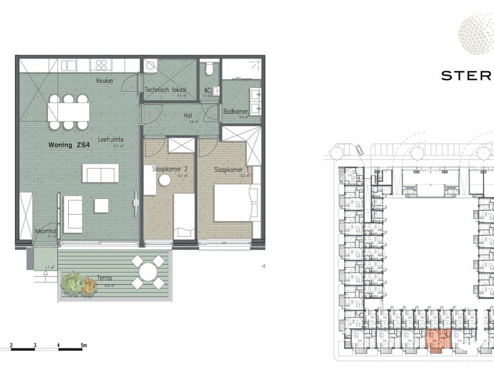
The entrance opens onto a bright living room of 37 m² with a fully equipped kitchen offering unobstructed views and access to a west-facing 11 m² terrace.
Behind the kitchen is a 4.3 m² laundry room.
The night hall leads to two bedrooms (10 m² and 13 m²), a separate toilet, and a shower room with a double sink.
The apartment also includes a cellar and a parking space.
Charges: €105/month, including common areas, hot water, and heating.
Available on 01/12/2025.
Technical details: EPC A, fiber optic connection, triple-glazed windows, double-flow ventilation, underfloor heating, thermostat, central heat pump boiler, induction hob, videophone, etc.
High-quality finishes.
Don’t miss this opportunity!
Ref. 7229099
In short
- 2
- 1
- 90,00 m²
- 11,00 m² - South west
- 1
- Ground floor
Surfaces
- Surface livable:
- 90,00 m²
- Terrace:
- 11 m²
- Living room:
- 32,00 m²
- Kitchen:
- 5,00 m²
- Bedroom 1:
- 13,20 m²
- Bedroom 2:
- 9,70 m²
- Bathroom:
- 4,80 m²
Technical
- EPC:
- 65 kWh/m²
- Electricity inspection:
- Yes,
- Window type:
- Aluminium
- Heating type:
- Floor heating
- Heater type:
- Common
- Construction year:
- 2023
- Videophone:
- Yes
- Elevator:
- Yes
- Connection gas:
- Yes
Admin & finances
- Availability:
- After tenancy
01 December 2025 - VAT applied:
- No
- Common costs:
- € 105,00 p/m
Good to know
- Floor:
- Ground floor
- Amount of floors:
- 2
- Type of cooking plates:
- Induction
- Kitchen:
- Completely fitted US
- Bathroom:
- Shower
- Laundry room:
- Yes
- Armored door:
- Yes
Documents & plans
Documents & plans
Login to view downloads
Marie Van Rymenant
Property Advisor
Want more info?
Similar properties
Contact us
'Sterea - 40'
Flat
€ 1.450 p/m
Zaventem
Would you like to know the address?
Login to view location












